LE DOMAINE
ALBERT-ROUSSEAU
Situé dans le secteur recherché de Saint-Étienne-de-Lauzon à Lévis, le Domaine Albert-Rousseau bénéficie d’un emplacement privilégié qui combine tranquillité résidentielle et proximité des services essentiels. Pensé pour faciliter le quotidien des familles, le quartier se trouve à quelques minutes seulement des écoles et des parcs offrant ainsi un environnement dynamique et sécuritaire où les enfants peuvent grandir et s’épanouir.
Les résidents profitent également d’un accès rapide à une variété de commerces et de services de proximité, notamment des épiceries et des pharmacies, permettant de répondre facilement aux besoins de tous les jours.
En plus de ces nombreux avantages, le Domaine Albert-Rousseau se distingue par son accès rapide à l’autoroute, facilitant les déplacements vers les différents secteurs de Lévis et vers la ville de Québec. Cet emplacement stratégique permet de profiter du calme d’un quartier résidentiel tout en restant bien connecté aux principaux pôles de services, de travail et de loisirs de la région.
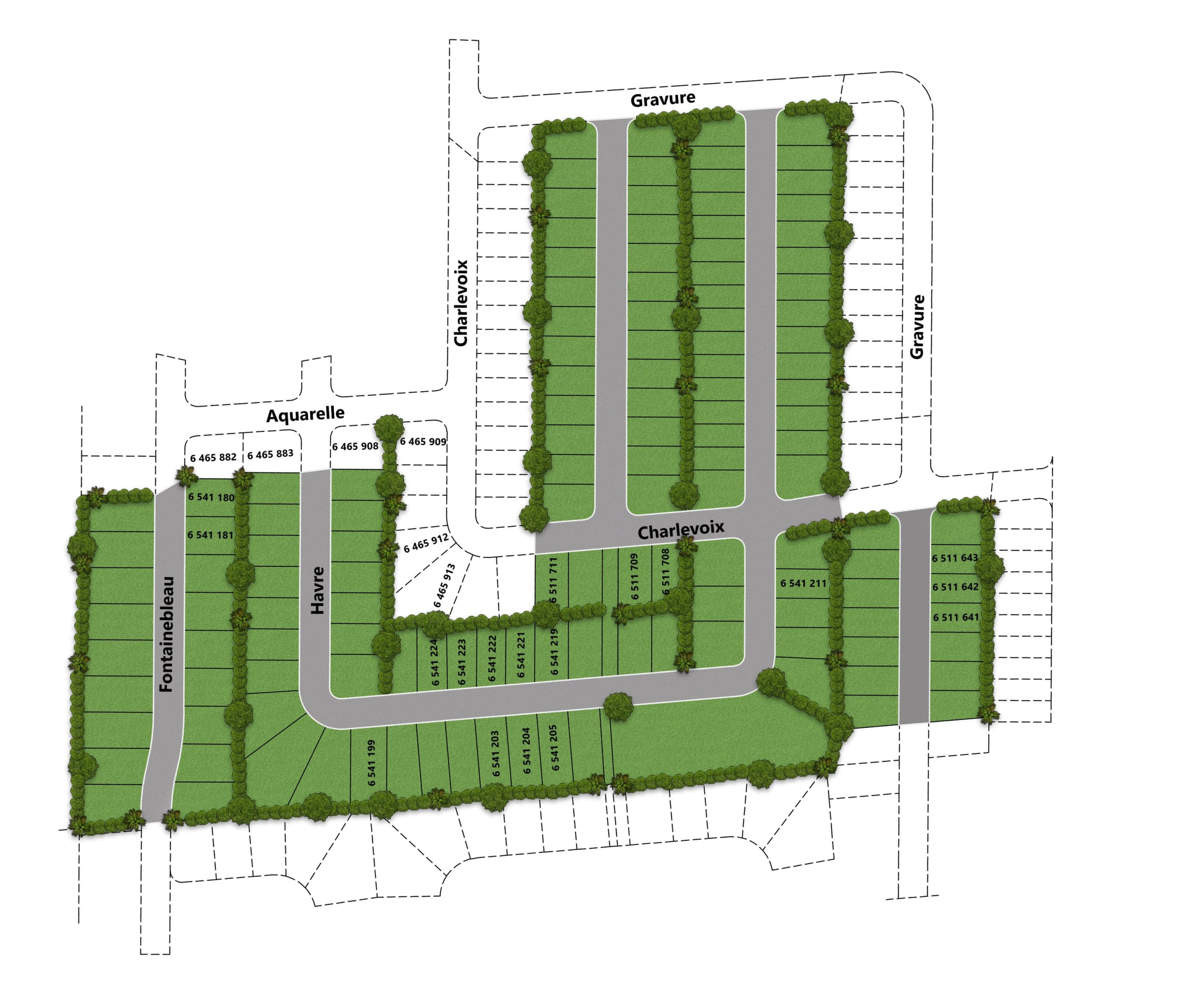
Les terrains disponibles
Explorez les terrains actuellement disponibles et trouvez l’emplacement idéal pour concriser votre projet de construction. De dimensions et configurations différentes, ces terrains s’adaptent à une variété de besoins, que vous rêviez d’une maison familiale, d’un espace plus intime ou d’un projet sur mesure.
Les modèles de maison proposés pour le projet
Que vous soyez à la recherche d’un plain-pied ou d’une maison de style cottage, plusieurs modèles BTL s’offrent à vous. Conçus comme des bases solides et évolutives, ils peuvent être adaptés selon vos besoins, votre budget, le terrain choisi et votre mode de vie.
Pensés pour simplifier chaque étape de votre projet, nos modèles allient efficacité, qualité et flexibilité, vous permettant de créer un espace qui vous ressemble, sans compromis.
Demandez un prix
Nous joindre
Adresse de BTL
1054, Rue du Parc-Industriel, Lévis, QC, G6Z 1C6
